
Содержание: конструкции, стекло, монтаж
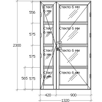
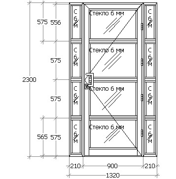
Количество конструкции: 1 шт.
Полная площадь: 3 м2
Профиль: ALUMIL M940.
Стеклопакет: Стекло 6 мм с противоударной и светоотражающей пленкой.
Цвета профилей: RAL 9006 (серый)
Стоимость конструкции с монтажом за 1м2 - 2592 грн.

Стоимость конструкции с монтажом за 1м2 - 2679 грн.